Die Aussteller unterstützen die Tagung und freuen sich auf einen Besuch an ihren Ausstellungsständen. |
||||
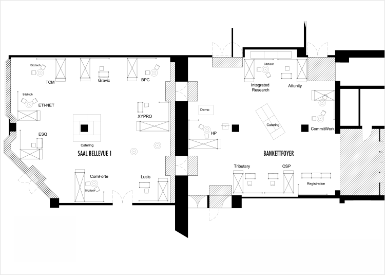
| Veranstaltungsort | ||||
| Westin Bellevue Hotel, Dresden, Foyer and Bellevue 1 | ||||
|
||||
| Öffnungszeiten | ||||
| Mittwoch, 26. September 2012, 09:00 bis 18:00 Donnerstag, 27. September 2012, 09:00 bis 16:30 |
||||
Ausstellungsbereich |
||||
![]() |
||||
| Hauptsponsor | Platin Sponsoren | |||
|
|
||||
| Gold Sponsoren | ||||
CSP Security.com Solutions for HP-NonStop Servers |
||||
Gravic, Inc.
Shadowbase Software |
||||
| Silber Sponsoren | ||||
TCM Solutions
The smart choice for IT services and support for systems that cannot afford to fail! |
||||
|
|
||||
|
|
||||
| Aussteller | ||||
|
|
||||














